Duplex
€ 1.100

Boneveldstraat 37 B2, 1880 Kapelle-op-den-Bos
    • delen

Omschrijving Ref.: 7311620

Ruim en energiezuinig duplex appartement te Kapelle-op-den-Bos


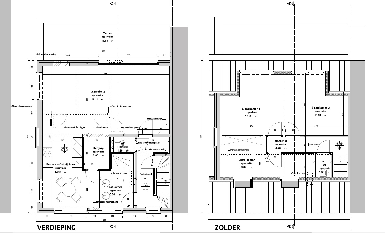
Dit modern en energiezuinig duplex appartement ligt op wandelafstand van het centrum van Kapelle o/d Bos, station, scholen en winkels. Ook de autosnelweg A12 Antwerpen - Brussel is gelegen op korte afstand. Met een bewoonbare oppervlakte van 126m² heeft het appartement volgende indeling: een gemeenschappelijke inkom- en traphal op het gelijkvloers. Op de 1ste verdieping: inkomhal, toilet, een aparte badkamer met inloopdouche en dubbele lavabo, een ruime woonkamer met volledig ingerichte keuken, eethoek, berging en zongericht terras (17m²). Op de 2de verdieping: nachthal, 3 slaapkamers en een apart toilet. Bovendien is er een garagebox én autostaanplaats inbegrepen in de huurprijs. Het gunstig EPC-attest en de zonnepanelen zorgen voor een zeer laag energieverbruik. Geen gemeenschappelijke kosten. Beschikbaar vanaf 01/04/2026 (of vroeger in samenspraak met de huidige huurder). Bezoekaanvraag per email via www.immorottiers.be


Uw contact

Vragen over deze eigendom ref: 7311620
contact

Details van het pand

Financieel

Prijs
€ 1.100,00/maand
Beschikbaarheid
Mits inachtneming huurders
Beschikbaarheid datum
01 April 2026

Ligging

Buurt
Centraal
School nabij
350m
Winkels nabij
700m
Openbaar vervoer nabij
450m
Autosnelweg nabij
4.500m
Sportcentrum nabij
850m

Gebouw

Bewoonbare oppervlakte
126,00 m²
Aantal gevels
3
Staat
Uitstekend
Verdiep
1
Aantal verdiepingen
2
Oriëntatie voorgevel
Oost

Terrein

Tuin
Nee
Oriëntatie terras 1
West

Parkeermogelijkheden

Garage
Ja
Parkings buiten
1
Parkings binnen
1

Indeling

Woonkamer
30,00 m²
Keuken
12,00 m², volledig geïnstalleerd
Slaapkamer 1
14,00 m²
Slaapkamer 2
12,00 m²
Slaapkamer 3
10,00 m²
Badkamer type
Douche
Toiletten
2
Terras
17,00 m²

Comfort

Gemeubeld
Nee
Handicapvriendelijk
Nee
Videofoon
Ja
Lift
Nee

Energie

EPC
69 kWh/m²/jaar
EPC unieke code
20180806-0002080025-1
Dubbele beglazing
Ja
Type verwarming
Gas cv
Verwarming
Individueel

Technieken

Elektriciteit
Ja
Telefoonbekabeling
Ja
Kabeltelevisie
Ja
Gas
Ja
Water
Ja

Stedenbouw

G-score
B
P-score
B

Meer info over deze eigendom

Bedankt voor je bericht, we contacteren je zo spoedig mogelijk.
Er was een probleem bij het versturen van het formulier, gelieve opnieuw te proberen.
U moet de algemene voorwaarden aanvaarden om dit bericht te kunnen verzenden
(*) Gelieve de verplichte velden in te vullen.